一、產品簡介
LXLGY-80~150系列復式水表,也叫子母水表,它由大小二種口徑的水表組成。自來水通過水表的計量范圍從小口徑水表最小流量到大口徑水表的最大流量。所以它是目前測量范圍較大,流量下限較低的一種水表。
二、產品特點
1.壓力損失小
DN80~200復式水表壓力損失小于等于0.04MPa,對供水企業而言,它的供水成本相對來說也是較低的。為供水企業節能降耗提供了有效地保障。
2.計量流程廣
其計量范圍從主表的旁路小口徑水表的最小流量到大口徑主水表的常用流量,量程比達到1250~3000。
3.始動流量小
DN80~150復式水表中的旁路小口徑水表若采用原DN20普通B級表,其始動流量小于等于14 l/h,而采用 DN20節水型水表,其始動流量小于等于2 l/h;DN200復式水表中的旁路小口徑水表若采用原DN25普通B級表,其始動流量小于等于17 l/h,而采用DN25節水型水表,其始動流量小于等于3 l/h;從而較好地解決了大口徑水表在最小流量下的低流量和超低流量狀態下無法記錄用水量的計量難題。
4.結構新穎
此類水表的機芯和流量轉換控制閥均采用插入可拆式,便于水表的維修與清洗。流量轉換控制閥采用磁力硅橡膠墊銅閥門組合件,密封效果好,磁鋼密封正面有一定厚度的銅隔離面和硅橡膠密封墊圈,由于密封面墊圈是硅橡膠的,且表面光滑,即使水中含有微量的鐵質小顆粒,也很難吸附在密封面上,相反,由于水的流動在閥瓣的背面會產生渦流,微小鐵質顆粒也只會吸附在閥瓣背面和底徑向面。
5.互換性好
DN80~200復式水表長度設計是與原LXL-80~200水平旋翼式水表長度相對應,可滿足在線使用的LXL-80~200水平旋翼式水表拆換安裝。如在DN80~150復式水表的進水口或出水口配置相對應的連接管,亦可滿足在線使用的LXS-80~150旋翼式水表拆換安裝。
三、流量技術參數
| 型號 | 大表公稱口徑 DN | 小表公稱口徑 DN | 過載流量 Q? | 常用流量 Q? | 分界流量 Q? | 最小流量 Q? | 最小讀數 Min | 最大讀數 Max |
| mm | m3/h | m3 | ||||||
| LXLGY-80 | 80 | 20 | 78.75 | 63 | 0.2 | 0.05 | 0.0001 | 999999+99999 |
| LXLGY-100 | 100 | 20 | 125 | 100 | 0.2 | 0.05 | 0.0001 | 999999+99999 |
| LXLGY-150 | 150 | 40 | 312.5 | 250 | 0.8 | 0.20 | 0.0001 | 999999+99999 |
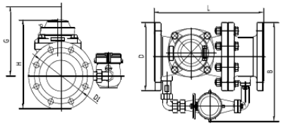
四、外形及規格尺寸

| 型號 | 公稱口徑 DN | 長 L | 高 H | 高 G | 寬 B | 連接法蘭 | 重量 | ||
| mm | 法蘭外徑 D | 螺栓孔中心圓直徑 D1 | 連接螺栓數量 | kg | |||||
| LXLGY-80 | 80 | 370 | 276 | 400 | 310 | 200 | 160 | 8×M16 | 27.5 |
| LXLGY-100 | 100 | 370 | 286 | 400 | 320 | 220 | 180 | 8×M16 | 33 |
| LXLGY-150 | 150 | 500 | 345 | 500 | 445 | 285 | 240 | 8×M16 | 64 |
五、結構組成
復式水表通常由公稱口徑為DN80及以上的主表、公稱口徑為DN25及以下的子表和轉換閥等組成,主表和子表并聯連接。母表采用水平螺翼式干式設計,計數器部分采用磁傳或液封方式,便于計數清晰準確,這也是該類水表比較好的設計方面。子表采用通常使用的旋翼式水表設計。為了達到大小流量的自由轉換,母表后跟隨流量控制閥,通過壓差自動控制流量控制閥的開啟。子表由同口徑管道將母表和轉換閥后相互連通,便于小流量時水流通過。當流量較小時,轉換閥關閉,水流由小口徑水表計量。當流量增大至轉換閥開啟時,大小兩表同時計量。
此類型水表的分流計量方式大大降低了大口徑水表的起始流量。能比普通水表承受更高的瞬間沖擊流量。它的設計屬于模塊化的設計,主表、旁路表、以及計數器部分均可依據客戶的需要靈活組合,當某個部件損壞時可以方便拆換,可以方便的實現各種方式的數據遠傳等。

六、工作原理及應用
由流量轉換控制閥根據流經水量的大小自動控制水流流過旁路小口徑水表或同時流過主路大口徑主水表,在用水量小時,流量轉換控制閥處于關閉狀態,由副表計量,主表不計量;即流量超過一定值(QX2)時,流量轉換控制閥開啟,主表副表同時計量;流量下降到一定值(QX1)時,流量轉換控制閥又關閉,副表計量。這樣,通過流量轉換控制閥的自動控制原理,發揮了大小水表的計量功能。 水表的計量讀數有兩個獨立的計數器記錄給出,也就是說流經復式水表的水的總體積便是主表(母表)指示器讀數與副表(子表)指示器讀數相加而得出的體積之和。
復式水表主要應用于非連續性大流量供水場合,即在大小流量差異較大,用水峰谷變化頻繁的計量場所。如住宅小區、機關、部隊、學校、礦山、醫院、廠區以及農村用水計量。解決了目前大口徑水表普遍存在的最小流量以下的低流量和超低流量水資源流失率較高的問題。